Monday, December 13, 2021

List Of Maple Island Log Homes Floor Plans 2022

List Of Maple Island Log Homes Floor Plans 2022. Canter lake 1708 sf total get quote; The unique dual pitch roof creates.

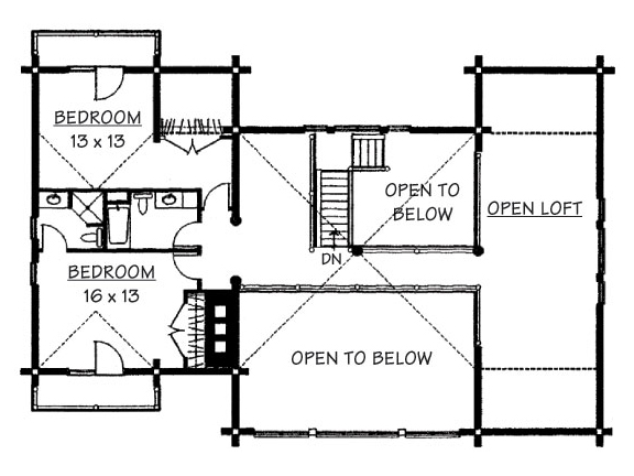
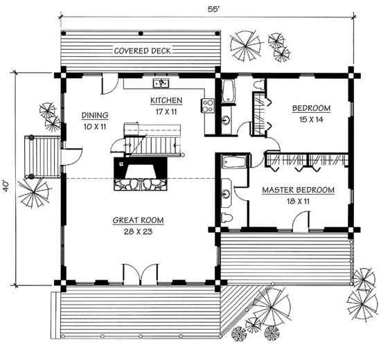
Pentwater Maple Island Log Homes
Pentwater Maple Island Log Homes from mapleisland.com

The cloud 9 cabin floor plan from honest abe log homes features six bedrooms each with a private deck or balcony, 7 baths, and. Canter lake 1708 sf total get quote; Bye bye open floor plans.

Cottage Style Homes To A Traditional Cape Cod Cottage & Many Plans In Between.


The denali is 1,600 sq. Canter lake 1708 sf total get quote; Log home floor plans built by norse log homes.

Bye Bye Open Floor Plans.


Creating a focal point is easy with a combo display. The uniquely designed denali cedar log home builds upon the classic layout of the bristol. And has 2 bedrooms with 1.5 baths.

Browse Through Our Network Of Home Professionals To Find The Right Floor


Find floor plan near me on houzz hiring a home professional for floor plan services is simple with houzz. Contact | contact maple island log homes. Traditional log home floor plans;

The Cloud 9 Cabin Floor Plan From Honest Abe Log Homes Features Six Bedrooms Each With A Private Deck Or Balcony, 7 Baths, And.


Sep 16, 2022 • september 16, 2022 • 4 minute read • join the conversation. The unique dual pitch roof creates. Baytown 1555 sf total get quote;

Toronto's Luxurious Condos For Sale, Rent And Investment Opportunities.


Ad we offer simple cottage plans, cottage plans with a loft, and more. Maple hill 1120 sf total get quote; Mapleview park barrie is the highly anticipated community of upscale detached and townhomes coming soon to mapleview drive and 20th sideroad.

No comments:

Post a Comment

25 Dark Purple Hair Color Ideas to Inspire Your New Hue

Table Of Content John Frieda Violet Crush Purple Shampoo Two-Toned Wavy Hair with Chopped Bangs The Surprising Benefits of Creating Hollywoo...